 
カーポート付き木造ガレージ「Breezeway-Style」
2018 AUTUMN
イープランの木造ガレージに新しく仲間入りした、カーポート付き木造ガレージ『Breezeway-Style』。そこで今回は『Breezeway-Style』について詳しくご紹介したいと思います。
木造ガレージ「Breezeway-Style」の魅力
Breezeway-Styleとはカーポート付きの木造ガレージです。毎日通勤などで使用する車やバイク・自転車はカーポートに入れる事ですぐに出発できますし、木造ガレージは休日に時を忘れて愛車の整備や鑑賞、仲間とツーリングの思い出を語ったり、大人の贅沢を楽しむ事ができます。
カーポート付き木造ガレージのメリット
ガレージのメリットは車やバイクを雨や風、盗難から守る事はもちろん、いろんな工具や趣味の物を置いて自分だけの空間を作り込むできます。天候が悪い日にも気にせず愛車やバイクの整備をすることができるのもメリットの1つです。
カーポートの魅力は、雨の日に車に乗り降りする際に、車の中も身体も濡れにくく、鳥の糞など上空からの落下物を防いでくれます。遅刻しそうで慌てて家を出たらフロントガラスが凍っていて、出発できない!雪が車に積もっていて出勤前に雪かきしなきゃ!なんていうこともカーポートがあると防ぐことができます。通勤で毎日使用するバイクや車はカーポートに収納すればすぐに出発できるところがメリットの1つです。
 そんな
ガレージとカーポートのメリットを合わせたのが、カーポート付き木造ガレージ『Breezeway-Style』です。2つのメリットを上手に使い分け快適なガレージライフが実現できます。
 
カーポート付き木造ガレージ「Breezeway-Style」のプラン
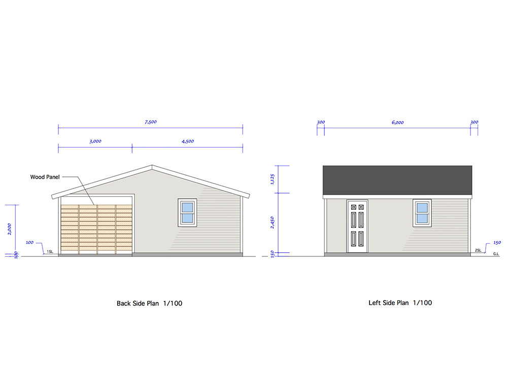
 3プランの違いは屋根の構造です。お好みのデザインをお選び頂けます。サイズは全て7.5×6.0でカーポートに車1台、ガレージ車1台入るサイズです。
プラン1
 ※カーポート部分は砕石です。コンクリート基礎はオプションになります。
 
プラン2
 ※カーポート部分は砕石です。コンクリート基礎はオプションになります。
 
  
 
プラン3
 ※カーポート部分は砕石です。コンクリート基礎はオプションになります。
 
カーポート付き木造ガレージG-PORTの価格
 今回ご紹介させていただいたパースの『G-PORT』3プランの価格は、
平坦な敷地の完成価格297万円(消費税,基礎工事,車庫としての内装工事込)です。
 ※運搬費、出張費、確認申請費用、完成検査申請、立会い費用は含みません。お好みのガレージドア・モーターを選び、金額を加算して下さい。
カーポート付き木造ガレージ『Breezeway-Style』外観
 今回パースでご紹介しているサイズは全て7.5×6.0mです。以下写真とは異なりますが、カーポート付き木造ガレージのイメージ写真としてご覧下さい。
 
カーポート付き木造ガレージ『Breezeway-Style』内装
 ガレージの内装は壁と天井を不燃材料(石膏ボード)を施工し、法律の用途上「物置」から「自動車車庫」になり、自動車を収納できるようになります。カーポート部分は背面にウッドパネル、天井は木なので、木造部分を楽しんで頂けます。2つの内装を楽しめるのもBreezeway-Styleの魅力の1つです。※イメージ写真です。ご参考までにご覧下さい。
イープランは北海道から沖縄まで日本全国どこでも工事に伺います!イープランは日本全国に豊富な施工実績がございます。基礎からガレージ建築まで全て対応しております。お近くの方はもちろん、遠方の方もお気軽にご相談ください。また、ガレージのカタログ・お見積もりを無料で承っております。ご不明点やご相談等ございましたらお気軽にお問い合わせ下さい。
お問い合わせはこちら
RECOMMEND ARTICLES
続けて読みたい!おすすめの記事
 
 
 
 
 
 
 
 
 
 
 
 
 
 
 
 
 
 
 
 
 
 
 
 
 
 
